上海辦公家具廠家——碧江辦公家具打造JW & ASSOCIATES設計事務所
項目名稱:極物建筑設計咨詢(上海)有限公司
英文名稱:JW (SHANGHAI) ARCHITECTURE DESIGN&CONSULTING CO.LTD
項目地址:中國上海市
項目面積:390m2
采購金額:98萬
站在品牌營銷與用戶線上線下完美體驗的高度,上海辦公家具廠家——碧江辦公家具始終都將客戶的個性化需求以及審美體驗放在設計最前沿。不知道是我們的營銷口碑做得非常好還是我們真正將用戶體驗做到了最極致化,在這個時間里很多上海辦公家具同行的訂單都紛紛“告捷”了,然而我們碧江辦公家具卻又一次接到了來自上海極物建筑設計事務所的合作訂單。

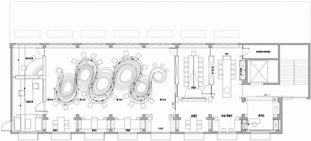
上海辦公家具廠家:JW & ASSOCIATES設計事務所辦公家具整體解決方案圖紙
因為極物建筑設計咨詢(上海)有限公司(JW&ASSOCIATES)是一個多元性的設計事務所,工作范圍包括室內設計、產品設計、建筑設計等。所以他們要求我們在給他們提供整套辦公家具解決方案時就要從辦公場所的多元性進行全方面來考慮。
上海辦公家具廠家——碧江辦公家具在對其構思之初就在尋找一種方式處理辦公環境,希望能將激烈的情感包裹其中,也可以讓平淡與激情并存,以創造出一個全新的獨特空間。拋棄一些繁雜的裝飾及過多的色彩,將功能和實用放在首位,追尋設計最初的本質。
上海辦公家具廠家——碧江辦公家具最終敲定下來的整體辦公家具解決方案是:讓辦公室的內部空間以一種特殊造型的辦公桌,給予觀者視覺沖擊力,在功能上也充分滿足一個公司的功能需求,竹林形成了天然氧吧,在空間上也形成一種分隔,分割著區域,隔而不段,讓空間更加富有層次;簡單的造型及本身的結構構成了空間的現代簡約感,材質本身的質感和顏色顯的更加溫暖,竹林也讓空間更加富有趣味。入口的接待臺由制作辦公桌的廢棄的材料組成,環保再利用也是我們設計的一個方向,地面和餐吧臺的TK樹脂材料水墨自由的流動在空間里,既生動又有韻味。下面就讓我們一起來看看上海辦公家具廠家——碧江辦公家具是如何來為JW & ASSOCIATES設計事務所打造整體高端辦公家具環境的!









相信看完以上的圖片,在這里能讓我們享受著這個辦公空間里的每一區域的辦公家具設計,感受著這個辦公空間帶給我們的輕松、自由、靈活,也不失嚴謹和細膩。
上海辦公家具廠家——碧江辦公家具,您身邊的高端辦公家具整體解決方案專家!我們立足上海,面向全國,作為領先的現代辦公環境整體解決方案的規劃者與實施者,貫徹前瞻性設計與卓越品質,以創造個性化高效辦公、提升工作幸福感為已任,隨時為客戶提供國際潮流與本地實際相結合的辦公場所解決方案以及全系列的產品和服務,以此來滿足不同場合的需求,并為客戶提供完整的項目管理服務。

相關資訊
- 碧江家具怎么樣?親身感受【碧江家具】
- 我和我的祖國,我們陪您成長【碧江家具】
- 重新定義辦公空間,商務從一張適合的前臺開始【碧江家具】
- 上海定制辦公家具要怎樣選擇廠家
- 上海辦公家具生產廠家哪家好
- 魅族科技
- 炎炎夏日,讓我們聆聽上海碧江辦公家具廠與魅族的合作情緣
- 上海辦公家具廠家——碧江辦公家具為您打造創意辦公空間
- 上海辦公家具廠家:如果海洋量子號跟碧江合作會怎樣?
- 上海辦公家具廠家:網購辦公家具請認真甄別,提防商業欺騙
最新產品
同類文章排行
- 哪家辦公椅好?遠比普通的的壽命長,碧江家具
- 辦公室如何消毒,謹防交叉感染【碧江家具】
- 碧江家具為你準備了這些?你覺得怎么樣?【碧江家具】
- 上海辦公桌廠家【碧江家具】復工是這樣做的!
- 你別來,我無恙!抱歉!非常時期!【碧江家具】
- 碧江家具怎么樣?親身感受【碧江家具】
- 上海哪里買辦公椅品種多?首選碧江家具!【碧江家具】
- 購5000,送5000積分;元旦大福利,積分享三倍【碧江家具】
- 不忘初心牢記使命,碧江家具組織黨員學習【碧江家具】
- 公司采購辦公家具,整體辦公配套方案【碧江家具】
最新資訊文章
您的瀏覽歷史







